For Sale £525,000
Fords Lane, Bramhall, SK7

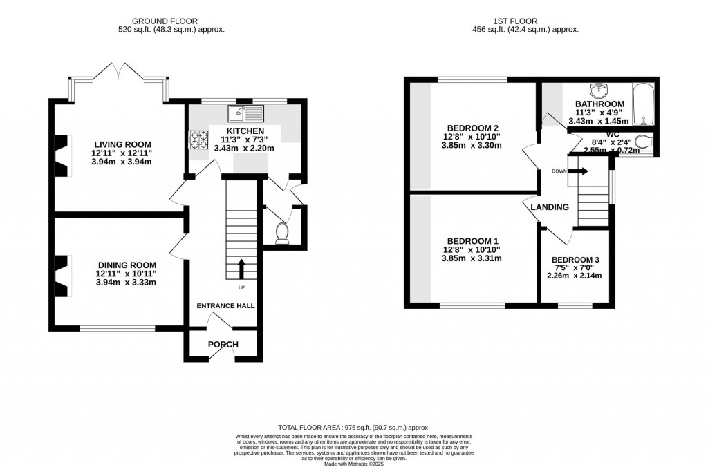
Floorplans For Fords Lane, Bramhall, SK7
EPC For Fords Lane, Bramhall, SK7

Property Features

  • WALKING DISTANCE TO BRAMHALL VILLAGE
  • HIGHLY SOUGHT AFTER BRAMHALL LOCATION
  • POTENTIAL TO EXTEND SUBJECT TO PLANNING
  • NO ONWARD CHAIN
  • BEAUTIFULLY MAINTAINED THROUGHOUT
  • LARGE DETACHED GARAGE

Description


Situated in a fantastic location, just minutes away from Bramhall Village, this wonderful property is offered for sale with no onward chain. The property is positioned just a short walk away from Bramhall village, boasting convenience and excellent access to local shops and restaurants.

Upon entering, you are greeted by a spacious hallway seamlessly connecting the main living areas. To the downstairs of the property, both of the reception rooms are generously proportioned, offering ample space for both relaxing or entertaining guests. The rear reception room in the property is adorned with natural light, entering via the double doors overlooking the well-manicured garden. The kitchen is well appointed with a range of contemporary units and integrated appliances, providing both functionality and style for everyday living. To the rear of the property, adjacent to both the kitchen and rear reception room, there is potential to extend subject to planning, allowing for a fabulous open-plan dining kitchen area. Upstairs, the property has three well proportioned bedrooms. Both the master bedroom and second bedroom boast fitted wardrobes, offering ample storage space, and the third bedroom is currently fitted out as an office space. The upstairs layout, is currently comprises of a bathroom space, with fitted units, a bath, with an electric shower and a fitted sink. Adjacent to this, is a separate toilet area, allowing space for a fantastic family bathroom following potential renovations. Externally, the property offers a detached garage providing plentiful storage space. Additionally, to the back of the garden, there is a cosy summer house, providing a wonderful space for relaxation. The garden is a marvellous space, primarily laid to lawn and enclosed by herbaceous borders and mature trees, providing a lovely private aspect.

The property offers a fabulous opportunity and a rare find in the market.

PROPERTY MISDESCRIPTIONS ACT 1991 For clarification, Leighton Snow Agents wish to inform prospective purchasers, that we have not carried out a detailed survey, nor have we tested any of the appliances or heating system and cannot give any warranties as to their full working order. Purchasers are advised to obtain independent specialist reports if they have any doubts. All measurements are approximate and should not be relied upon for carpets or furnishings.

Material Information

Council Tax Band: D
Local Authority: Stockport MBC
Construction Type + Roof: See main description.
Tenure: Leasehold
Lease Expiry Date: Not Known
Ground Rent: Not Known
Ground Rent Period: Month
Ground Rent Expiry: Not Known
Ground Rent Review Period (years): Not Known
Ground Rent Uplift: Not Known
Service Charge: Not Known
Service Charge Period: Month
Service Charge Notes: Not Known

Utilities

Electrictiy Supply: Ask Agent
Heating Supply: Ask Agent
Water Supply: Ask Agent
Sewerage Supply: Ask Agent
Broadband: Ask Agent
Mobile: See main description.

Restrictions

Has Restrictions?: Unknown
Has Required Access?: Unknown
Public Right of Way?: Unknown
Adaptations: Ask Agent

Risks

Has Flooded in the Last Five Years?: Unknown
Has Flood Defences?: Unknown
Sources of Flooding: Unknown

For further details on this property please give our office a call
0161 439 4500

ARRANGE A VIEWING
Printable Version

Share This Property

Book a viewing or enquire about this property

Simply fill out the form below or alternatively call us on 0161 439 4500

* Mandatory fields